실거래
다세대
단독
토지
대지평당가
거래량
👇 눌러서 상세 내역을 확인해보세요
| 계약일 | 유형 | 주소 | 가격 | 대지지분 |
|---|---|---|---|---|
| 24.07.26 | 토지 | 용두동 709-23 | 1.67억 | 3,943만/평4.23평 |
| 15.11.11 | 단독 1980년 | 용두동 709-20 연 10.00평 | 2.2억 공시가 357만 | 1,372만/평16.03평 |
| 15.08.15 | 단독 1980년 | 용두동 709-18 연 13.00평 | 3.1억 | 1,235만/평25.11평 |
| 14.12.19 | 단독 1980년 | 용두동 709-20 연 10.00평 | 2.16억 공시가 357만 | 1,347만/평16.03평 |
| 12.10.15 | 단독 1948년 | 용두동 711-9 연 11.00평 | 3.5억 | 1,585만/평22.08평 |
진행현황
정비구역지정
2000.2.9
추진위원회
2004.2.18
조합설립인가
2005.9.14
사업시행인가
관리처분인가
착공
인근 구역
비교할 수 있는 가격 데이터가 없습니다.
인근 아파트
| 이름 | 연차 | 세대수 | 전용 | 가격 |
|---|---|---|---|---|
| 청량리역롯데캐슬SKY-L65 | 4 | 1,425 | 84㎡ | 19.8억 |
| 용두롯데캐슬리치아파트 | 12 | 311 | 59㎡ | 11.0억 |
| 84㎡ | 14.0억 | |||
| 114㎡ | 15.0억 | |||
| 래미안허브리츠 | 16 | 844 | 59㎡ | 13.0억 |
| 84㎡ | 14.4억 | |||
| 114㎡ | 16.9억 | |||
| 용두두산위브 | 18 | 338 | 84㎡ | 13.1억 |
| 105㎡ | 14.0억 |
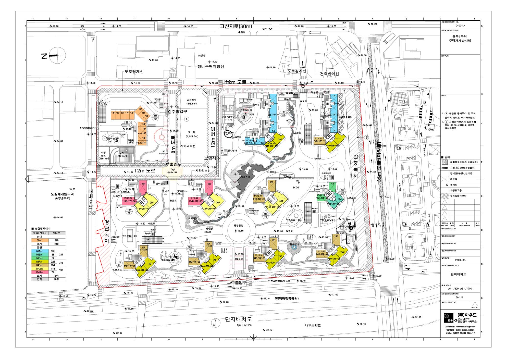
사업 정보
구역명
용두제1구역 주택재개발정비사업조합
진행단계
조합청산
사업구분
재개발(주택정비형)
위치
동대문구 용두동 80-1번지
분양 정보
전체세대
1,264세대
분양세대
1,054세대
임대세대
210세대
60㎡이하
442세대
60~85㎡
422세대
85㎡초과
190세대
건축 정보
지상층수
20층
지하층수
2층
건폐율
17.07%
용적률
235.08%
연면적
170,206.98㎡
토지 정보
정비구역면적
58,262.5㎡
택지면적
46,188.7㎡
도로면적
6,272.6㎡
토지소유자
556명
조합 정보
조합명
용두제1구역주택재개발정비사업조합
전화번호
02-963-7761
세대 정보
전체 세대 수
7
다세대 세대 수
0
아파트 세대 수
0
단독 세대 수
7
연립 세대 수
0
토지 현황
과소필지
27필지 / 36필지 (75%)
접도율
4동 / 9동 (44%)
호수밀도
30.2 호/ha (9호)
노후도
현재
19/19 (100%)
5년 후
19/19 (100%)
10년 후
19/19 (100%)
유형별 토지 면적
단독주택
714 m² (19%)
근린생활시설
2,553 m² (70%)
도로
56 m² (2%)
기타
348 m² (9%)
용도별 토지 면적
일반상업지역
3,259 m² (91%)
준주거지역
328 m² (9%)
소유자별 토지 면적
개인
1,635 m² (46%)
국공유지
1,952 m² (54%)
종교/학교
구역 내에 종교/학교 시설이 없습니다.



