실거래
거래가격
거래량
| 계약일 | 유형 | 전용면적 | 가격 | 동/층 |
|---|---|---|---|---|
| 25.09.29 | 아파트 | 84.67m² | 16.5억 | 2층 |
| 25.09.27 | 아파트 | 84.67m² | 15.95억 | 9층 |
| 25.09.23 | 아파트 | 84.67m² | 등기16억 공주가 8.55억 | 11동 7층 |
| 25.09.18 | 아파트 | 84.67m² | 16.3억 | 6층 |
| 25.09.15 | 아파트 | 84.67m² | 16억 | 4층 |
진행현황
정비구역지정
2017.7.20
추진위원회
2017.12.1
조합설립인가
2019.3.28
사업시행인가
2024.1.11
관리처분인가
2025.3.14
착공
인근 아파트
| 이름 | 연차 | 세대수 | 전용 | 가격 |
|---|---|---|---|---|
| 송파레이크파크호반써밋1차 | 5 | 689 | 108㎡ | 20.8억 |
| 송파파인타운3단지 | 19 | 625 | 84㎡ | 19.0억 |
| 가락래미안파크팰리스 | 20 | 919 | 59㎡ | 21.0억 |
| 84㎡ | 23.5억 | |||
| 114㎡ | 24.9억 |
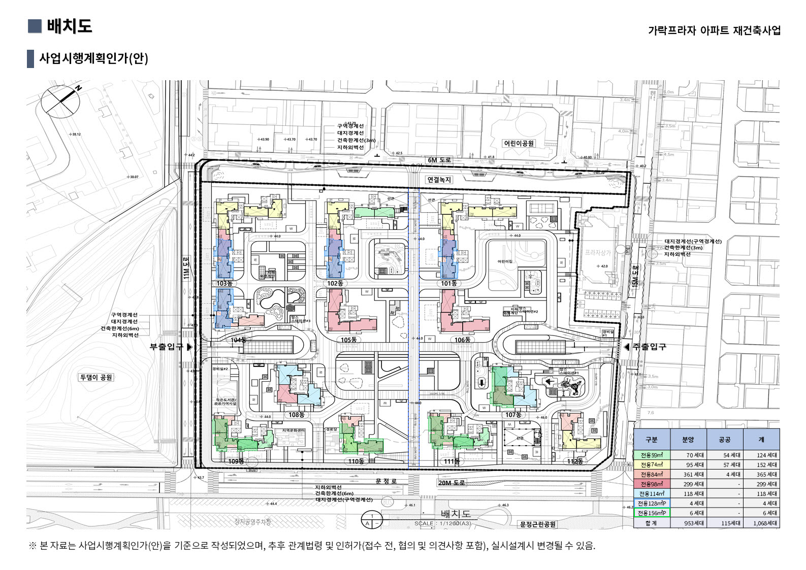
사업 정보
구역명
가락프라자아파트 주택재건축 정비구역
진행단계
관리처분인가
사업구분
재건축
위치
송파구 동남로18길 44(가락동 199)
분양 정보
전체세대
1,068세대
분양세대
953세대
임대세대
115세대
60㎡이하
70세대
60~85㎡
456세대
85㎡초과
427세대
건축 정보
지상층수
35층
지하층수
3층
높이
152m
건폐율
23.07%
용적률
299.91%
연면적
211,014.6㎡
토지 정보
정비구역면적
45,808.8㎡
택지면적
41,686.2㎡
도로면적
619.8㎡
토지소유자
673명
조합 정보
조합명
가락프라자아파트 주택재건축정비사업조합
주소
서울특별시 송파구 동남로18길 41, 2층 (가락동)
전화번호
02-431-8788
세대 정보
전체 세대 수
672
다세대 세대 수
0
아파트 세대 수
672
단독 세대 수
0
연립 세대 수
0
토지 현황
과소필지
0필지 / 1필지 (0%)
접도율
11동 / 11동 (100%)
호수밀도
12.2 호/ha (56호)
노후도
현재
13/13 (100%)
5년 후
13/13 (100%)
10년 후
13/13 (100%)
유형별 토지 면적
공동주택
46,426 m² (94%)
기타
2,763 m² (6%)
용도별 토지 면적
제3종일반주거지역
47,807 m² (100%)
소유자별 토지 면적
개인
47,807 m² (100%)
종교/학교
구역 내에 종교/학교 시설이 없습니다.





