실거래
거래가격
거래량
| 계약일 | 유형 | 전용면적 | 가격 | 동/층 |
|---|---|---|---|---|
| 26.01.13 | 아파트 | 121.04m² | 등기22.5억 공주가 10.26억 | 1동 10층 |
| 25.10.30 | 아파트 | 121.04m² | 21.05억 | 1층 |
| 25.10.29 | 아파트 | 121.04m² | 등기20.5억 공주가 9.3억 | 10동 1층 |
| 25.10.24 | 아파트 | 121.04m² | 등기21.5억 공주가 10.26억 | 6동 11층 |
| 25.10.20 | 아파트 | 121.04m² | 등기21억 공주가 10.15억 | 5동 12층 |
진행현황
정비구역지정
2017.11.16
추진위원회
2018.5.23
조합설립인가
2019.4.29
사업시행인가
2024.2.28
관리처분인가
착공
인근 아파트
| 이름 | 연차 | 세대수 | 전용 | 가격 |
|---|---|---|---|---|
| 송파더플래티넘 | 3 | 328 | 52㎡ | 12.6억 |
| 65㎡ | 13.8억 | |||
| 66㎡ | 14.9억 | |||
| 106㎡ | 17.9억 | |||
| 송파시그니처롯데캐슬아파트 | 6 | 1,945 | 59㎡ | 18.4억 |
| 84㎡ | 22.3억 | |||
| 가락래미안파크팰리스 | 20 | 919 | 59㎡ | 21.0억 |
| 84㎡ | 23.5억 | |||
| 114㎡ | 24.9억 | |||
| 문정래미안 | 23 | 1,696 | 84㎡ | 19.9억 |
| 120㎡ | 21.0억 | |||
| 133㎡ | 22.7억 | |||
| 150㎡ | 20.0억 | |||
| 170㎡ | 25.4억 |
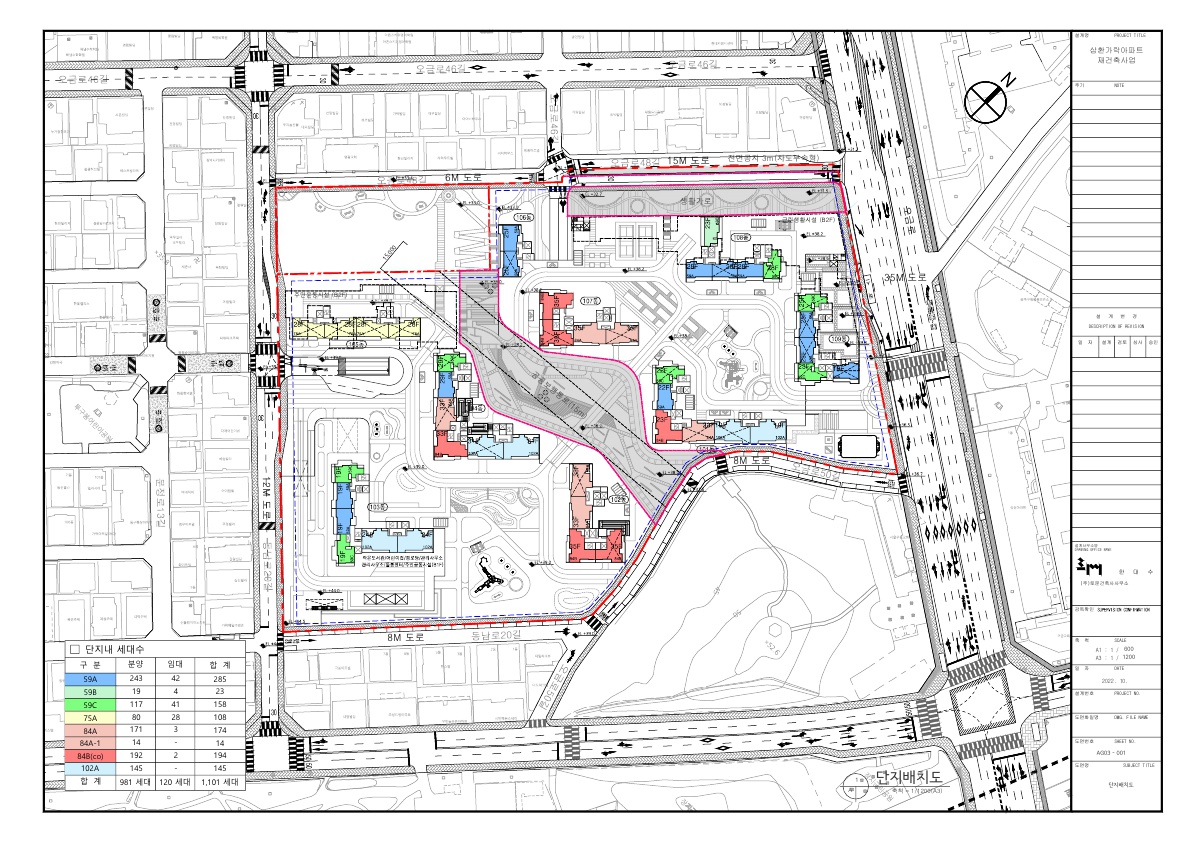
사업 정보
구역명
삼환가락아파트 주택재건축정비사업조합
진행단계
사업시행인가
사업구분
재건축
위치
송파구 가락동 176-0
분양 정보
전체세대
1,101세대
분양세대
981세대
임대세대
120세대
60㎡이하
379세대
60~85㎡
457세대
85㎡초과
145세대
건축 정보
지상층수
35층
지하층수
4층
높이
100m
건폐율
15.25%
용적률
299.86%
연면적
189,987.68㎡
토지 정보
정비구역면적
40,749.2㎡
택지면적
37,446.03㎡
공원면적
3,303.17㎡
토지소유자
687명
조합 정보
조합명
삼환가락아파트 재건축정비사업 조합
주소
서울특별시 송파구 동남로20길 30, 3층 (삼환가락재건축조합) (가락동)
전화번호
02-400-5571
세대 정보
전체 세대 수
648
다세대 세대 수
0
아파트 세대 수
648
단독 세대 수
0
연립 세대 수
0
토지 현황
과소필지
0필지 / 2필지 (0%)
접도율
9동 / 9동 (100%)
호수밀도
13.3 호/ha (54호)
노후도
현재
10/10 (100%)
5년 후
10/10 (100%)
10년 후
10/10 (100%)
유형별 토지 면적
공동주택
39,589 m² (89%)
도로
2,724 m² (6%)
기타
2,320 m² (5%)
용도별 토지 면적
제2종일반주거지역
2,724 m² (6%)
제3종일반주거지역
40,749 m² (94%)
소유자별 토지 면적
개인
40,749 m² (94%)
국공유지
2,724 m² (6%)
종교/학교
구역 내에 종교/학교 시설이 없습니다.






